1.設備簡介
1.1.工作原理
回轉式機械格柵是由耙齒裝配成一組回轉格柵鏈,在電機減速器的驅動下,耙齒鏈進行逆水流方向回轉運動,耙齒鏈運轉到設備的上部時,由于槽輪和彎軌的導向,使每組耙齒之間產生相對自清運動,絕大部分固體物質靠重力落下,另一部分則依靠清掃器的反向運動把粘在耙齒上的雜物清掃干凈。按水流方向耙齒鏈類同于格柵,在耙齒鏈軸上裝配的耙齒間隙可以根據使用條件進行選擇,當耙齒把流體中的固態懸浮物分離后可以保證水流暢通流過。整個工作過程是連續的,也可以是間歇的。

1.2.適用行業
> 城市污水處理 > 飲料行業
> 自來水廠 > 紡織行業
> 食品加工業 > 屠宰行業
> 造紙廢水 > 制藥廢水
> 皮革業 > 石油化工
為方便客戶對我公司回轉機械格柵產品的配置、技術參數和特點進行深入了解,更為便捷快速的進行設備選型,特進行如下設備選型指導。
2. 選型說明
2.1.LF回轉式機械格柵簡介
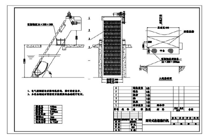
回轉式機械格柵柵隙可以從3mm-20mm,單機設備寬度適合300-1800mm,如果機寬超過1800mm,則可以做成并聯,中間部分用公用墻分隔,設備溝深有客戶定制一般不小于0.8m,不大于15m。(如圖)

2.2.設備選型須知
要明確的參數有:
>渠寬
>渠深
>柵隙
>排渣高度
>安裝角度
>機架材質
>耙齒材質
>過水流量(客戶設計的過水流量V設備最大過水流量)
2.2.1.產品類型

2.2.2.選型步驟
> 確定渠寬:渠寬數值比設備寬數值大100m,如:渠寬600mm,則設備寬度應選500mm。
> 確定渠深:渠深為非標準,計算方法咨詢客服。
> 確定柵隙:根據需求選擇格柵柵隙。
> 確定安裝角度:商城在售安裝角度:60/65/70/75/80度
> 確定機架材質:是碳鋼還是不銹鋼。
> 確定耙齒材質:尼龍/不銹鋼;
> 過水流量
2.2.3.設備外形尺寸計算及運輸
回轉式機械格柵設備寬度根據客戶提供的渠寬,排渣高度來計算設備的長度,設備的長度主要是根據正玄定理來計算,舉例說明:

如圖,渠深為2.3m,—般情況下設備的出渣口高度為0.8m(也可以根據客戶需求來定制), 則垂直高度為2.3+0.8+0.7=3.8m,安裝角度為70°,根據正玄定理
sin 70°= 垂直高度/設備長度
則 設備長度(m)= 垂直高度/sin 70°(正玄值可用科學計算器或査正玄表)
算出設備的外形尺寸后報給運輸公司來核算運費,運輸為整機運輸。
2.2.4.設備配置表

注:供貨期一般為18-25天,供貨范圍同設備配置表。
2.2.5.設備圖紙及安裝

2.2.6.安裝

可根據設計在渠道兩邊預埋鋼板,安裝時預埋板與格柵支撐腳對接后焊接。也可將格柵支撐腳用膨脹螺栓固定。
2.2.7控制系統
LF回轉式機械格柵控含現場控制箱,在現場接入三相電源即可使用。現場電控箱上釆用就地起停控制按鈕,現場電控箱上設有設備的啟動、停機按鈕及啟動、停機、事故信號燈,為節省能耗,所有信號燈都采用節能型,在電控箱內設有電動機保護器??刂乒窨煽紤]到全廠PLC系統與電控箱的連接,由電控箱反映設備運行信號送至控制室,同時由PLC接到電控箱的控制信號控制格柵的開停機,本電控箱不銹鋼外殼,室外防雨。
3.產品特色
>耙齒材質尼龍或者不銹鋼SS304,總價不變;
>標配優質減速機,電機
>安裝角度可微調;
>機械、電器雙重過載保護;
>自控優化,間歇性運行;
>自凈刷,防止齒耙堵塞;
>出渣口貼心設置,衛生整潔;
>關鍵部位防水性設計;